











Maison/Chalet
Ref:
2126
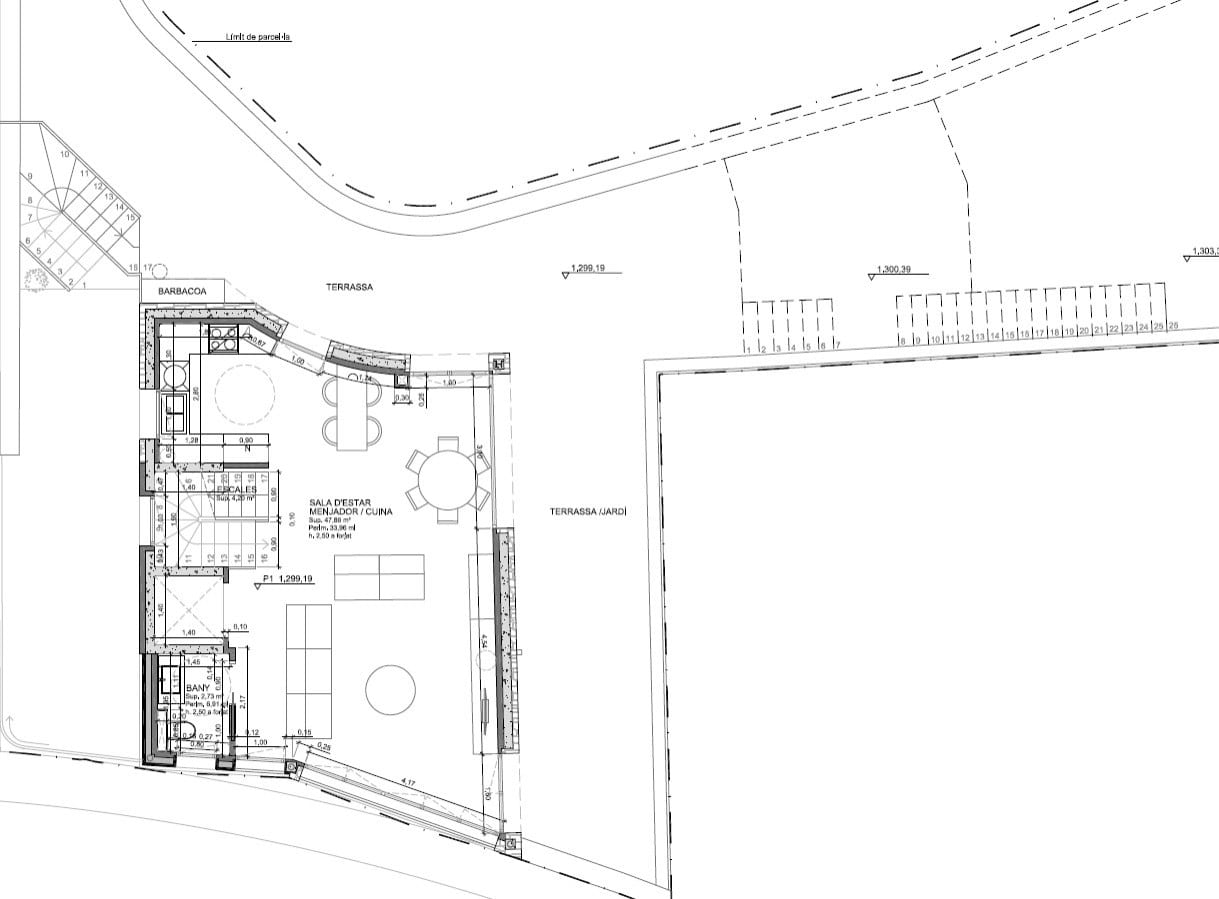
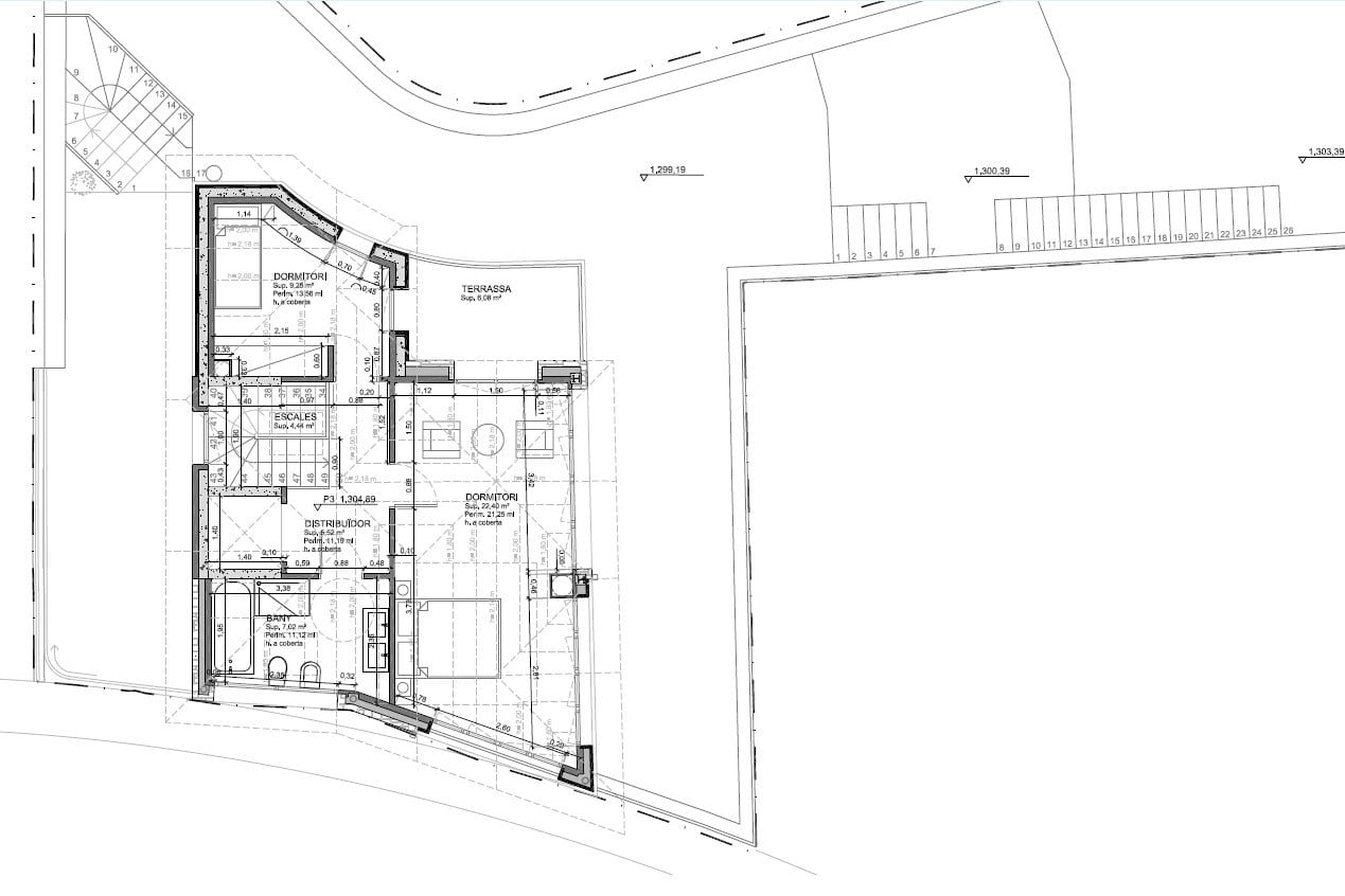
Charmante Maison Individuelle à Louer à L’Aldosa de la Massana Découvrez cette maison individuelle exceptionnelle située dans le quartier calme et pittoresque de L’Aldosa de la Massana. Actuellement en construction et prévue pour être livrée d’ici la fin de l’année, cette propriété offre une occasion unique de profiter d’un confort moderne au cœur d’un cadre naturel montagnard. Répartie sur quatre étages spacieux d’environ 70 m² chacun, la maison dispose de vastes espaces intérieurs, de plusieurs terrasses et d’un jardin privé — parfait pour profiter de l’extérieur en toute saison. Grâce à son orientation sud, est et ouest, la maison bénéficie d’un excellent ensoleillement tout au long de la journée, rendant chaque pièce lumineuse et accueillante. Que vous recherchiez une maison familiale ou un havre de paix à la montagne, cette propriété allie intimité, espace et beauté naturelle dans l’un des quartiers résidentiels les plus prisés d’Andorre.



