












Flat
Ref:
2173
Fantastic penthouse, located in the heart of Escaldes-Engordany, just a few minutes walk from all services, supermarkets, schools, administrations and also very close to Caldea and Avenida Carlemany.
 
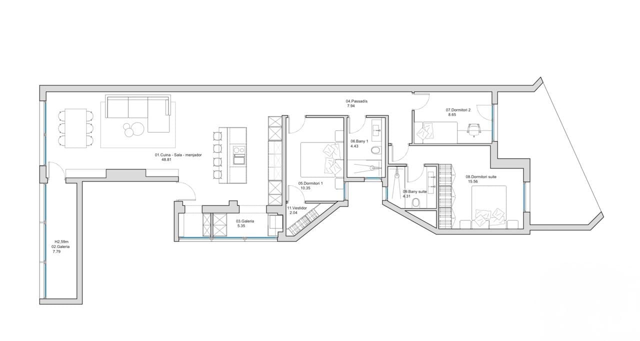
 It is the only flat on the entire floor, so it enjoys a lot of privacy and tranquility. It is a space of 174m2, between the apartment and its two terraces, in which we will find a magnificent home, very comfortable and cozy.
 
 The south orientation guarantees sun throughout the day and provides great luminosity to all rooms. It has two outdoor areas, very pleasant and totally private, from which there is a splendid panoramic view of the mountains and the city.
 
 With a modern and functional design, in the day area we will find a large living-dining room with views of the city and an open kitchen, fully equipped with high quality materials. The night area consists of a large en-suite bedroom with its own bathroom including a bathtub and two more double bedrooms. There is also a second full bathroom with a shower and the property also has an additional office and a useful laundry area.
 
 It will be rented fully furnished and equipped.
 
 The price includes a garage for 2 large cars and a storage room on the same floor as the apartment.



